Te koop: Appartement Dordtsestraat 11
2587 TS 's-Gravenhage
€ 550.000,- k.k.
Verkocht onder voorbehoud

Bekijk alle foto's

Beschrijving

Op een aantrekkelijke locatie in het Belgisch Park gelegen 5/6 kamer dubbelbovenhuis (ca. 106 m2) op de 1e, 2e en zolderetage met achterbalkon gelegen op het zuiden. Het appartement is in 2022 volledig gerenoveerd en geïsoleerd. Energielabel C!
De woning bevindt zich op loopafstand van de zee, het strand, de duinen en de winkels van de Gentsestraat en de Stevinstraat. Tevens in de buurt van diverse scholen, kinderdagverblijven, Internationale scholen, het Westbroekpark, openbaar vervoer en de uitvalswegen van Den Haag.

(see English below)
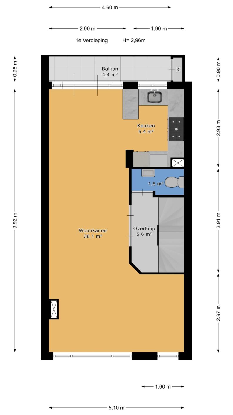
Indeling:

entree op staatniveau: hal met originele tegels en garderobe met schoenenkast,

trap naar de

1e etage:

overloop met modern toilet met fonteintje

L-vormige en doorgebroken woon-/eetkamer met open haard, laminaatvloer en

moderne open keuken met inbouwapparatuur o.a. inductiekookplaat en Quooker

openslaande deuren vanuit de woonkamer naar achterbalkon (Z) met bergkast en elektrische zonwering

trap naar de

2e etage:

overloop met waskast en modern toilet

moderne badkamer met ligbad, douche en wastafelmeubel

ruime voorkamer met kastenwand en dakkapel

ruime achterkamer met vaste kast en dakkapel

achterzijkamer met dakkapel

trap naar de

zolderetage:

werk-/speel-/slaapkamer met Velux dakraam, c.v.-opstelplaats en bergruimte

Bijzonderheden:

- op loopafstand van zee, strand en duinen gelegen dubbelbovenhuis op de 1e, 2e en zolderetage met achterbalkon gelegen op het zuiden

- het appartement is in 2022 volledig gerenoveerd en zonder opknapkosten te betrekken

- voor de exacte maatvoering verwijzen wij naar de plattegronden en meetrapport

- woonoppervlakte ca. 106 m²

- bouwjaar 1932

- energielabel C

- kunststof kozijnen voorzien van dubbele beglazing

- de vloeren en het dak zijn geïsoleerd

- vloerverwarming op de 1e etage aanwezig

- buitenonderhoud wat recent is uitgevoerd; balkon zinkwerk, nieuwe hemelwaterafvoeren, dakgoten vervangen, boeidelen laten schilderen, schoorstenen opnieuw gevoegd

- elektra 12 groepen met 3 aardlekschakelaars en 3 fase

- c.v. gas met warmwatervoorziening (Remeha 2018)

- de aansluitingen voor airconditioning en zonnepanelen zijn voorbereid

- glasvezelaansluiting aanwezig

- de Vereniging van Eigenaren is actief, de bijdrage is € 103,93 per maand, inclusief gemeenschappelijk opstalverzekering en MJOP

- erfpacht is eeuwigdurend heruitgegeven, de canon bedraagt € 79,20 per half jaar en wordt herzien op 1-1-2026, de grondwaarde bedraagt € 17.600,-

- de zgn. “ouderdoms- en asbestclausules” zullen in de koopakte worden opgenomen

- de aanbiedingsvoorwaarden van dit kantoor van toepassing

Wij verzoeken u vriendelijk bezichtigingsaanvragen online in te dienen via onze website, Funda of per e-mail.

--------------------------------------------------------------------------------------------------------------------------

In an attractive location in the Belgisch Park situated 5/6 room two storey upper house (approx. 106 m²) on the 1st, 2nd and attic floor including 4 bedrooms and a rear balcony facing south. The apartment was fully renovated and insulated in 2022. Energy label C!

The property is within walking distance of the sea, beach, dunes and the shops on Gentsestraat and Stevinstraat. Also close to various schools, day-care centres, international schools, Westbroekpark, public transport and the main exit roads of The Hague.

Layout:

entrance at street level: hall with original tiles, cloakroom with shoe cabinet and stairs to the

1st floor:

landing with modern toilet and wash basin

L-shaped open-plan living and dining room with fireplace, laminate flooring and modern open kitchen with built-in

appliances incl. induction hob and Quooker

French doors from the living room to the rear balcony (S) with storage cupboard and electric awning

stairs to the

2nd floor:

landing with laundry closet and modern toilet

modern bathroom with bathtub, shower and washbasin unit

spacious front room with fitted wardrobes and dormer window

spacious back room with built-in wardrobe and dormer window

rear side room with dormer window

stairs to the

attic floor:

study/playroom/bedroom with Velux skylight, central heating system and storage space

Special features:

- Within walking distance of the sea, beach and dunes, two storey upper house on the 1st, 2nd and attic floor with rear balcony facing south

- The apartment was fully renovated in 2022 and move-in ready without any additional costs

- For exact measurements, please refer to the floor plans and measurement report

- Living area approx. 106 m²

- Built in 1932

- Energy label C

- Plastic window frames with double glazing

- Floors and roof are insulated

- Underfloor heating on the 1st floor

- Recently executed external maintenance: balcony zinc work, new rainwater drains, gutters replaced, fascia boards painted, chimneys repointed

- Electricity: 12 circuits with 3 residual-current devices and 3-phase connection

- Central heating on gas with hot water supply (Remeha 2018)

- Connections for air conditioning and solar panels are pre-installed

- Fibre optic connection available

- The Owners’ Association (VvE) is active, the contribution is € 103.93 per month, including communal building insurance and multi-year maintenance plan (MJOP)

- Leasehold has been reissued in perpetuity, the ground rent is € 79.20 per half year and will be revised on 1-1-2026, the ground value is € 17,600

- The so-called “old age and asbestos clauses” will be included in the purchase deed

- The general terms and conditions of this agency apply

If you are interested in this property, please contact your own NVM estate agent. Your NVM estate agent will look after your interests and will save you time, money and concerns.

Contact details of NVM estate agents in The Hague area are listed on Funda.

106 m2
4 slaapkamers
Lees meer

Kenmerken

Overdracht

Vraagprijs € 550.000,- k.k.
Aanvaarding In overleg

Oppervlaktes en inhoud

Perceel oppervlakte n.v.t.
Woonoppervlakte 106 m2
Inhoud 387 m3

Bouw

Soort Bovenwoning
Bouwvorm Bestaande bouw
Bouwjaar 1932
Dak type Zadeldak
Isolatievormen Dakisolatie, Vloerisolatie, Dubbelglas
Energielabel C

Indeling

Aantal verdiepingen 3
Aantal kamers 5
Aantal slaapkamers 4
Aantal badkamers 1

Zonligging


Ligging Dordtsestraat 11

Voorzieningen

Restaurant
OV
Supermarkt
Winkelcentrum
Onderwijs
Sport

Bezichtiging inplannen

    Velden met een ster (*), zijn verplichte velden.