Te koop: Appartement

2587 CS 's-Gravenhage
€ 725.000,- k.k.
Beschikbaar

Bekijk alle foto's

Beschrijving

Aantrekkelijk in het Belgisch Park gelegen goed onderhouden en ruim 6 kamer dubbel bovenhuis (ca. 136 m²) met 4 slaapkamers, voor-, achterbalkon en zonnig terras aan de achterzijde. Eigen grond!
Het sfeervolle appartement is zeer aantrekkelijk gelegen op loopafstand van de zee, het strand, de duinen en de winkels van de Gentsestraat en de Stevinstraat. Tevens in de buurt van de Willem de Zwijgerschool, Internationale scholen, het Westbroekpark, openbaar vervoer en de uitvalswegen van Den Haag.

(see English below)
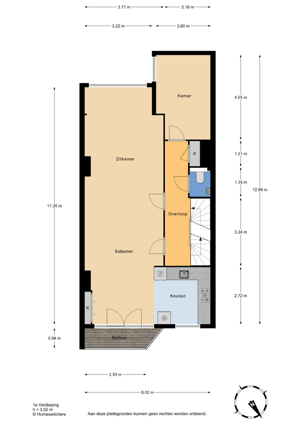
Indeling:

entree op de begane grond, gang met trap naar 1e etage:

gang met bergkast en toilet met fonteintje (2022)

sfeervolle woon-/eetkamer met houten vloer en voorbalkon

moderne open keuken (Piet Zwart) met inbouwapparatuur

ruime achterkamer

trap naar het

2e etage:

overloop met daklicht, wasruimte, vaste kast en kast met cv-opstelplaats

voorzijkamer

voorkamer

ruime achterkamer met fraaie walk in closet en achterbalkon

luxe badkamer (2022) met ligbad, douche, toilet, wastafel en designradiator

toegang tot leuk zonneterras op de middag- en avondzon!

Bijzonderheden:

- in ’t Belgisch Park gelegen ruim dubbelbovenhuis met terras (ZW)

- sfeervol en goed onderhouden

- woonoppervlakte ca. 136 m²

- bouwjaar ca. 1913

- energielabel D geldig tot 09-03-2036

- voorzien van dubbele beglazing

- fraaie pitch pine houten vloeren

- inwendig schilderwerk (2022)

- dakbedekking vernieuwd (ca. 2003)

- gevels gevoegd en geïmpregneerd (ca. 2003)

- c.v. gas met warmwatervoorziening (Remeha 2018)

- uitgebreide elektrische installatie

- er is een meerjaren onderhoudsplanning

- de Vereniging van Eigenaren is recent geactiveerd, bijdrage € 75,- per maand, 1/2e aandeel

- de zgn. “ouderdoms-, asbest- en materialenclausules” zullen in de koopakte worden opgenomen

- eigen grond

- de aanbiedingsvoorwaarden van dit kantoor zijn van toepassing

_________________________________________________________________________________________________

Attractively located in the Belgisch Park, this well-maintained and spacious 6-room 2 floor apartment house (approx. 136 m²) features 4 bedrooms, a front and rear balcony, and a sunny terrace at the back. Freehold property (no ground lease)!

This charming apartment enjoys a highly desirable location within walking distance of the sea, the beach, the dunes, and the shops on Gentsestraat and Stevinstraat. It is also close to the Willem de Zwijgerschool, international schools, the Westbroekpark, public transport, and major access roads to and from The Hague.

Layout:

Ground floor:

Entrance, hallway with stairs to the first floor.

First floor:

Hallway with storage cupboard and toilet with washbasin (2022)

Atmospheric living/dining room with wooden flooring and front balcony

Modern open-plan kitchen (Piet Zwart) with built-in appliances

Spacious rear room

Stairs to the second floor.

Second floor:

Landing with skylight, laundry area, built-in cupboard, and cupboard housing the central heating system

Front-side room

Front room

Spacious rear room with a beautiful walk-in closet and rear balcony

Luxurious bathroom (2022) with bathtub, shower, toilet, washbasin, and designer radiator

Access to a lovely sunny terrace with afternoon and evening sun

Key Features:

Spacious double upper house with southwest-facing terrace in Belgisch Park

Charming and well-maintained

Living area approx. 136 m²

Built around 1913

Energy label D (valid until 09-03-2036)

Double glazing throughout

Beautiful pitch pine wooden floors

Interior painting completed in 2022

Roof covering replaced (approx. 2003)

Facades repointed and treated (approx. 2003)

Central heating system with hot water supply (Remeha, 2018)

Extensive electrical installation

Long-term maintenance plan in place

Homeowners’ association recently activated; contribution €75 per month (50% share)

“Age, asbestos, and materials clauses” will be included in the purchase agreement

Freehold property (no ground lease)

The selling agent’s terms and conditions apply

136 m2
4 slaapkamers
Lees meer

Kenmerken

Overdracht

Vraagprijs € 725.000,- k.k.
Aanvaarding In overleg

Oppervlaktes en inhoud

Perceel oppervlakte n.v.t.
Woonoppervlakte 136 m2
Inhoud 497 m3

Bouw

Soort Bovenwoning
Bouwvorm Bestaande bouw
Bouwjaar 1913
Dak type Plat dak
Isolatievormen Dubbelglas
Energielabel D

Indeling

Aantal verdiepingen 2
Aantal kamers 6
Aantal slaapkamers 4
Aantal badkamers 1

Zonligging


Voorzieningen

Restaurant
OV
Supermarkt
Winkelcentrum
Onderwijs
Sport

Bezichtiging inplannen

    Velden met een ster (*), zijn verplichte velden.